Skip to content
Toggle Navigation
Home
Who We Are
Testimonials
Awards
What We Do
Personalised Design & Building Services
Renovations or Extensions
Commercial Works
How We Do It
Portfolio
Plans
Custom Plans
Designer Plans
Duplex Plans
Contact
Toggle Navigation
Home
Who We Are
Testimonials
Awards
What We Do
Personalised Design & Building Services
Renovations or Extensions
Commercial Works
How We Do It
Portfolio
Plans
Custom Plans
Designer Plans
Duplex Plans
Contact
Toggle Navigation
Home
Who We Are
Testimonials
Awards
What We Do
Personalised Design & Building Services
Renovations or Extensions
Commercial Works
How We Do It
Portfolio
Plans
Custom Plans
Designer Plans
Duplex Plans
Contact
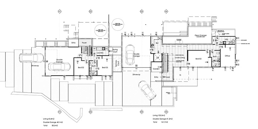
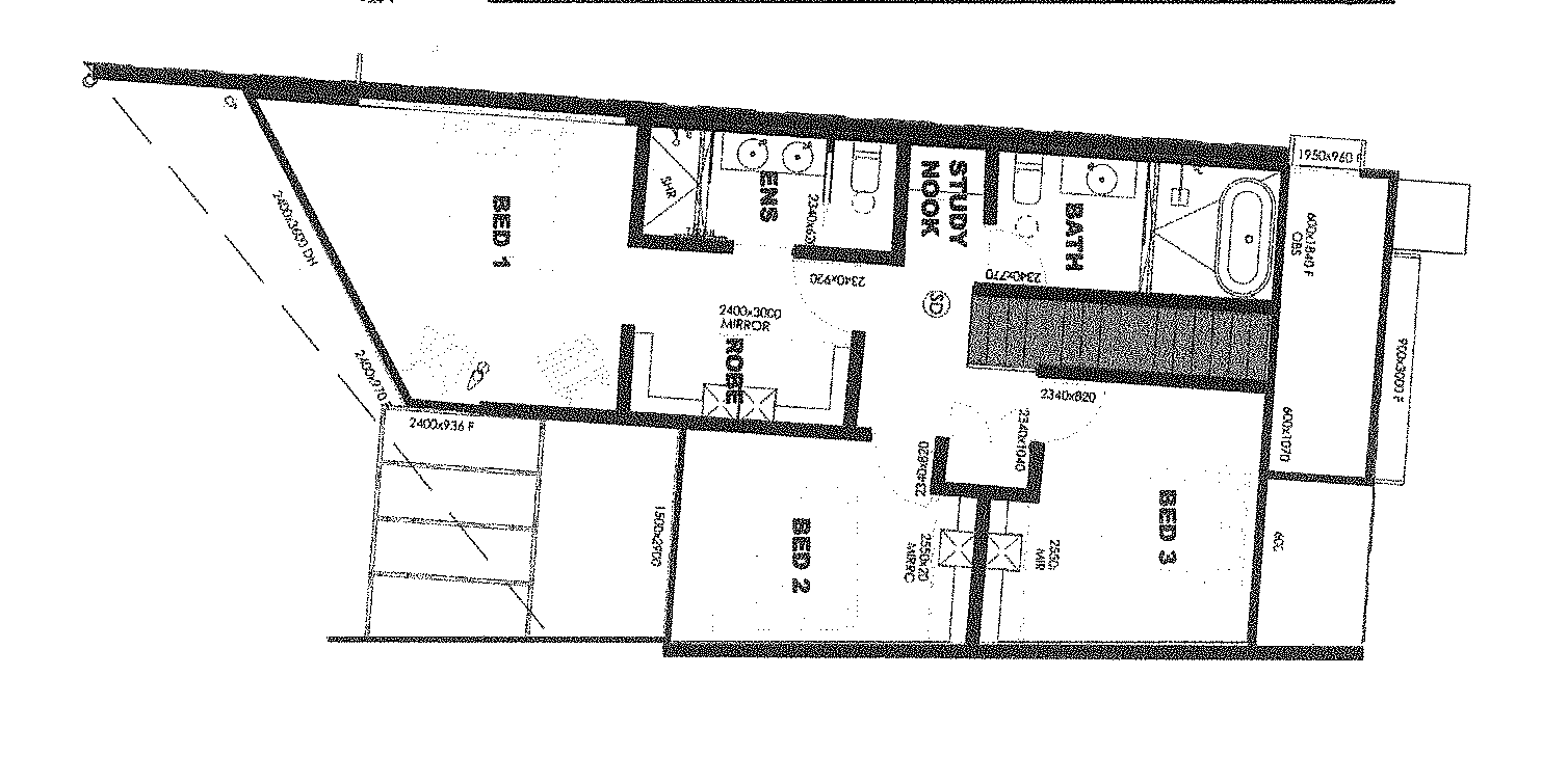
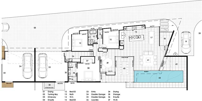
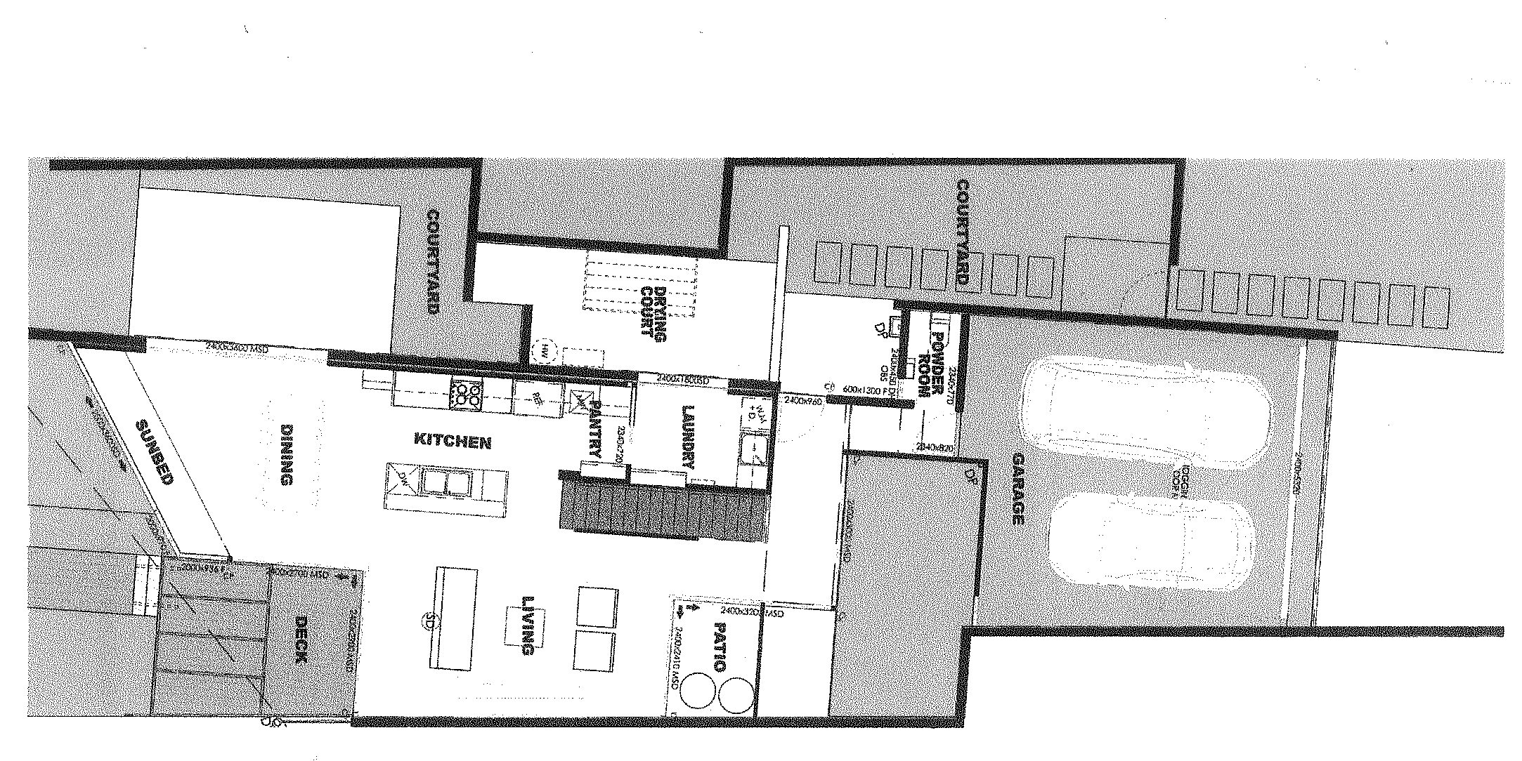
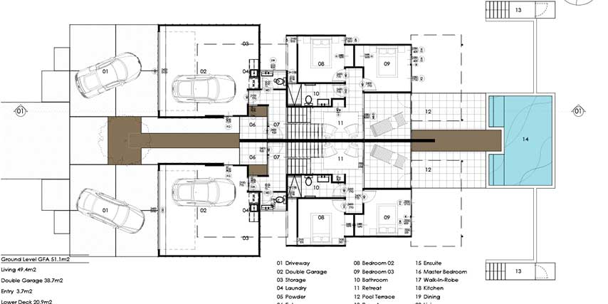
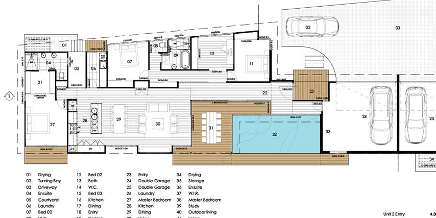
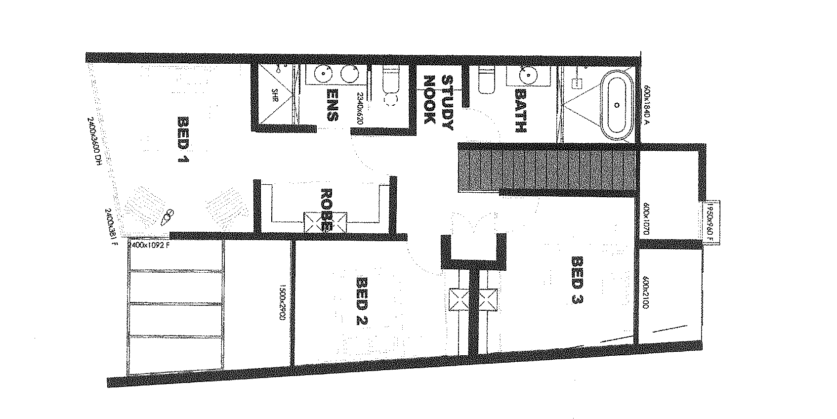
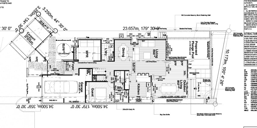
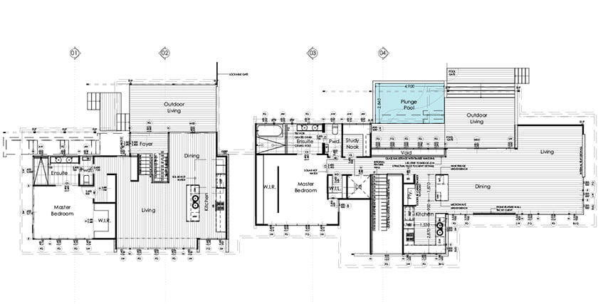
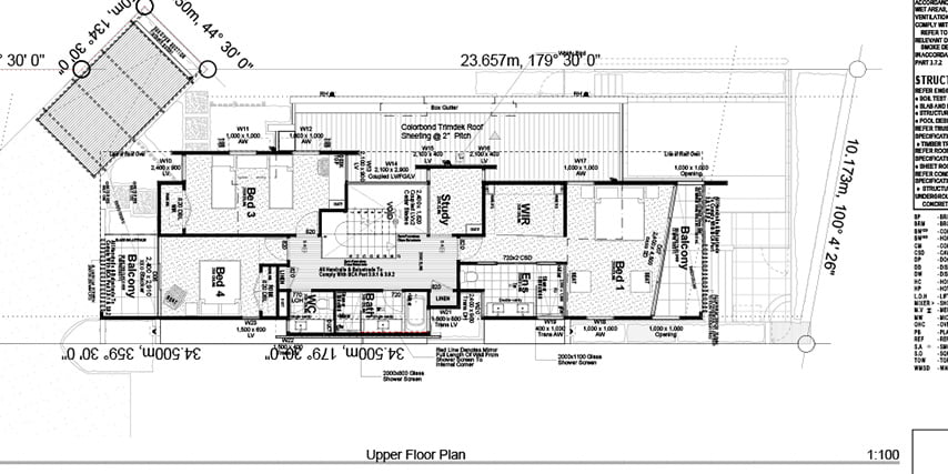
Duplex Plans
Duplex Plans
Tegan
2025-12-24T02:34:27+00:00
Yaroomba
Sunrise Beach
Buderim
10 Wide Site
6 Pak Pelican
Page load link
Go to Top